• Save
land/development plot for sale - Spalding Road, Pinchbeck, Spalding, Lincolnshire, PE11 - Property View 1
  • land/development plot for sale - Spalding Road, Pinchbeck, Spalding, Lincolnshire, PE11 - Property View 2
land/development plot for sale - Spalding Road, Pinchbeck, Spalding, Lincolnshire, PE11

£92,500

Asking price

Spalding Road, Pinchbeck, Spalding, Lincolnshire, PE11

land/development plot for sale

    Description

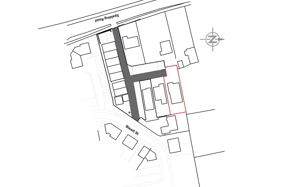
    APPROVED PLANNING FOR A THREE BEDROOM DETACHED BUNGALOW WITH SINGLE GARAGE AND OFF ROAD PARKING. PLANNING REFERENCE H14-0924-24

    Plot is down a private drive in the village of pinchbeck.

    The plot has approved planning for a three bedroom detached bungalow with single garage.
    Read more

    Location

    Spalding Road, Pinchbeck, Spalding, Lincolnshire, PE11

    Loading...

    Looking for mortgage advice or the best deal?
    Our team is here to assist you.

    Stamp Duty Calculator

    Monthly repayment
    You have to pay stamp duty:

    Affordability Calculator

    You could borrow between
    and
    • Save
    Spalding
    2025-02-13 11:52:36
    2025-12-02 10:02:07

    May also interest you...

    2 bedroom apartment for sale - Homerton Street, Cambridge, Cambridgeshire, CB2
    £400,000 Offers in excess of
    • Apartment
    • 2
    • 2
    3 bedroom house for sale - Walkern Road, Stevenage, Hertfordshire, SG1
    £475,000 Offers in excess of
    • House
    • 3
    • 1
    2 bedroom apartment for sale - The Hicking Building, Queens Road, Nottingham, NG2
    £142,500 Asking price
    • Apartment
    • 2
    • 2